Dźwig A1000
Nasz dźwig to uniwersalne rozwiązanie do transportu w budynkach codziennego użytku. Starannie dobrane komponenty oraz sprawdzone podzespoły dają energooszczędne i bezawaryjne działanie. Dzięki funkcji stand-by oraz oświetleniu LED stworzyliśmy rozwiązanie przyjazne środowisku.
Jednocześnie realizacja zamówienia możliwa w 3 tygodnie!

Dzięki modernizacji kabina zyska nowy wygląd, którego jakość potwierdzą trwałe i łatwe do utrzymania w czystości materiały wykończeniowe. Planując modernizację można wybrać jedną
z 4 podstawowych aranżacji lub vario.
Zastosowane liny mają dużo wyższy współczynnik bezpieczeństwa niż inne środki trakcyjne, nowe drzwi szybowe i kabinowe z zastosowaniem kurtyny bezpieczeństwa oraz progresywne chwytacze czynią dźwig urządzeniem bezpiecznym zarówno dla użytkowników jak i osób dbających
o konserwację i serwis.

Standardowe wypełnienia kabiny
Cztery wystroje oraz indywidualny dobór kolorystyki wnętrza kabiny,
pozwala na estetyczne dopasowanie się do architektury budynku.
kolor szary
8 punktów (Q 1000 kg)
8 punktów (Q 1000 kg)
1 x tylna ściana cała szerokość (kabina nieprzelotowa), 1 x boczna ściana naprzeciw panelu dyspozycji cała głębokość (kabina przelotowa)
1 x tylna ściana ½ wysokości kabiny (kabina nieprzelotowa), 2x boczna ściana przy panelu dyspozycji (kabina przelotowa)
8 punktów (Q 1000 kg)
1 x tylna ściana cała szerokość (kabina nieprzelotowa), 1 x boczna ściana naprzeciw panelu dyspozycji cała głębokość (kabina przelotowa)
1 x tylna ściana ½ wysokości kabiny (kabina nieprzelotowa), 2x boczna ściana przy panelu dyspozycji (kabina przelotowa)
8 punktów (Q 1000 kg)
1 x tylna ściana cała szerokość (kabina nieprzelotowa), 1 x boczna ściana naprzeciw panelu dyspozycji cała głębokość (kabina przelotowa)
1 x tylna ściana ½ wysokości kabiny (kabina nieprzelotowa), 2x boczna ściana przy panelu dyspozycji (kabina przelotowa)
Wykładzina: drewno podobna – R10-18972 Rustic Oak, biała – R10-176082
1 x tylna ściana cała szerokość (kabina nieprzelotowa), 1 x boczna
ściana naprzeciw panelu dyspozycji cała głębokość (kabina przelotowa)
1 x tylna ściana ½ wysokości kabiny (kabina nieprzelotowa), 2x boczna
ściana przy panelu dyspozycji (kabina przelotowa)
Standardowe wypełnienie ścian
Wykonanie ścian: standardowy kolor szary; klasyczny wygląd jasne lub ciemne drewno; elegancki wystrój stal nierdzewna „Len” oraz wypełnienie z lakierowanego szkła lub z nadrukowaną grafiką, pozwalają na dopasowanie aranżacji kabiny. Dodatkowo dobór wykładziny, kolor sufitu oraz umiejscowienie luster i poręczy dopełniają jej wystrój.
Przykładowy panel dyspozycji z piętrowskazywaczem i kasetą wezwań
Opis
• nominalnym udźwigu w kilogramach,
• maksymalnej liczbie przewożonych pasażerów,
• numerze fabrycznym dźwigu,
• dacie produkcji
• oraz nazwie instalatora dźwigu
Każda tabliczka oznaczona jest znakiem CE- wskazującym zgodność dźwigu z kryteriami określonymi w Normach Zharmonizowanych oraz Dyrektywie Dźwigowej, na odpowiedzialność Jednostki Notyfikowanej, której numer identyfikacyjny znajduje się obok oznaczenia CE. Tabliczka zintegrowana jest z automatycznym oświetleniem awaryjnym.
Służy do prowadzenia rozmowy pomiędzy kabiną, a miejscem,
z którego przeprowadzane są działania w sytuacji awaryjnej.
Według projektu inwestora.
Przyciski odpowiadające przystankom, służą do normalnej obsługi dźwigu.
Służy do natychmiastowego zamknięcia drzwi.
Służy do ponownego otwierania drzwi w celu umożliwienia pasażerom wejścia lub wyjścia, kiedy kabina znajduje się na przystanku.
Służy do aktywacji dwukierunkowego systemu komunikacji pomiędzy kabiną, a miejscem, z którego przeprowadzane są działania w sytuacji awaryjnej.
W kasecie wezwań znajduje się jeden przycisk na każdym
przystanku, w zależności od sterowania zamówionego dźwigu.
Podzespoły
Wciągarka
Dźwig Typ A został wyposażony w tradycyjny silnik synchroniczny firmy Sicor lub Ziehl-Abegg z stalowym kołem ciernym, wykonanym z odlewu odpornego na ścieranie i stalowymi linami jako środek trakcyjny. Takie rozwiązanie zapewni wysoki komfort jazdy, bezpieczeństwo, trwałość i wydajną pracę dźwigu. Napęd zamontowany w nadszybiu pozwala na uniknięcie potrzeby wykonania maszynowni górnej, co przekłada się na obniżenie kosztów budowy.
Chwytacze i ogranicznik prędkości
Chwytacze CSGB 01 produkowane przez firmę Wittur w austriackiej fabryce to progresywne chwytacze bezpieczeństwa. Siła hamowania jest generowana poprzez kombinację sprężyn talerzowych i elementów hamujących, zawsze w parze oraz aktywowanych przez ruchomy klin blokujący. Siła hamująca jest nastawiana przez dobór zestawu sprężyn talerzowych.
Ogranicznik LK250 włoskiej firmy PFB zabezpiecza kabinę przed przekroczeniem dopuszczalnej prędkości.
Liny
Liny TSR śred. 6,7 mm, szwajcarskiej firmy Brugg. Zastosowanie odpowiedniej ilości lin, z zawieszeniem elastomerowym zapewnia równomierne obciążenie układu linowego oraz minimalne ich wydłużenie. Układ linowy wykonany jest z przełożeniem 2:1.
Sterowanie
Sterowanie opiera się on na mikroprocesorowym sterowniku dźwigowym firmy Arkel Arcode. Elementy takie jak; styczniki, przekaźniki, wyłączniki, transformatory, zasilacze, wykorzystywane w szafach są produkowane przez czołowych producentów osprzętu automatyki – General Electric, Moeller, Schneider, Finder, Wago, Weidmuller. Zastosowanie markowych elementów gwarantuje niezawodną pracę oraz łatwy dostęp do części zamiennych. Sterowanie nie posiada blokad za pomocą kodów dostępu co ułatwi konserwację w okresie eksploatacji przez niezależne od producenta firmy
Drzwi
Dźwig M450 jest wyposażony w automatyczne drzwi 2 panelowe teleskopowe, zarówno w kabinie,
jak i na przystankach. Dla zwiększenia bezpieczeństwa w drzwiach kabinowych znajduje się kurtyna świetlna, która uniemożliwia zamknięcie drzwi, gdy coś jest na jej przeszkodzie.
Wittur
2 panelowe teleskopowe
Standard
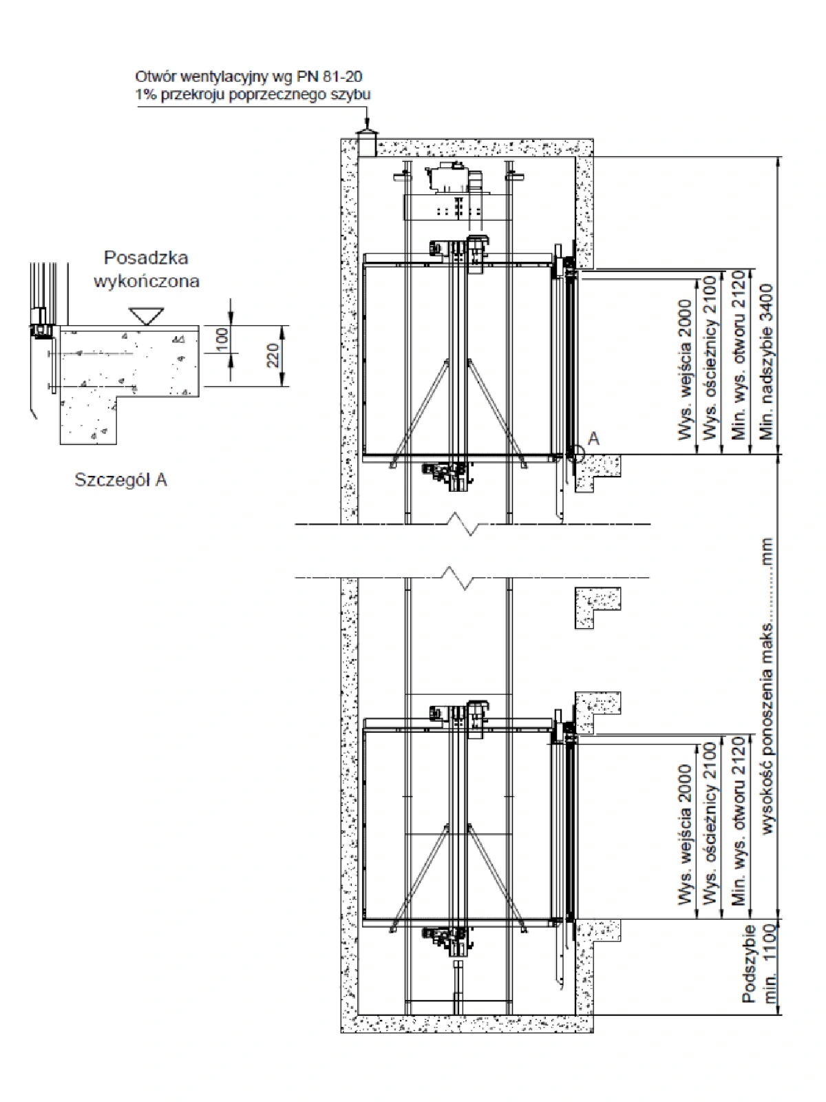
Przekrój szybu dla dźwigu A1000 (Kabina nieprzelotowa)
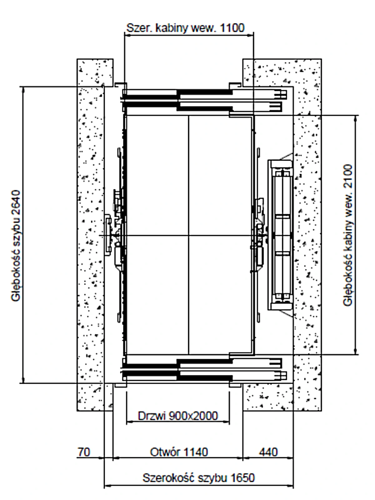
Przekrój szybu dla dźwigu A1000 (Kabina przelotowa)
Dane techniczne dźwigu A630
Przemiennik częstotliwości zapewniający łagodny start i zatrzymanie
4 aranżacje kabiny lub indywidualny dobór
LED 8 punktów
Czujnik przeciążenia kabiny, bezprzewodowy system łączności – moduł GSM, alarm dźwiękowy w kabinie i na dachu kabiny, dwa przyciski bezpieczeństwa stop w szybie, oświetlenie szybu LED



















































